- 賃貸物件
- Rent
貸倉庫・テナント(奄美市名瀬真名津町)
【 店舗・テナント 】店舗や事務所、倉庫に…。
| 面積 | 築年月 | 賃料 管理費等 | 敷金 礼金 |
|---|---|---|---|
| 96.64㎡ 1階2店舗(6坪・4坪)2階(17坪)坪 | 1983年11月 | 60,000 円 | 無し 1カ月 |
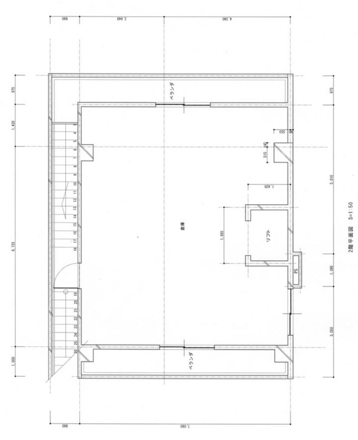
物件写真・間取り
物件概要
| 物件名 | 貸倉庫・テナント(奄美市名瀬真名津町) |
|---|
| 交通機関 |
|---|
| 建物構造 | RC |
|---|
| 所在階 / 階数 | 1・2階 |
|---|
| 住宅保険 | 要 |
|---|
| 保険料 | 17000~ |
|---|
| 契約期間 | 2年間 |
|---|
| 引渡 | 相談 |
|---|
| 設備・条件 | 1階の階段下にトイレ有。 |
|---|
| 取引態様 | 媒介 |
|---|
| 情報登録日 | 2026年02月09日 |
|---|
| 情報更新日 | 2026年02月09日 |
|---|
























奄美市名瀬真名津町にある1階、2階のテナント賃貸物件
何か用途に可能性がありそう!✨o(^o^)o✨
店舗や事務所、倉庫に…。
1階2店舗(6坪・4坪)2階(17坪)
1階2店舗(賃料:右側 60,000円/月)(賃料:左側 60,000円/月)2階(賃料:80,000円)のワンフロア 別々で賃貸もできますし、まとめてでも賃貸できます。
1階2階を全体でお借りいただく場合など利用用途に合わせて価格相談いたします。
(GoogleMAP)https://maps.app.goo.gl/f6QCfrsFbjvK7TZM7
ご興味があればお問い合わせください!
こちらの物件のビルは購入もできます。詳細は↓
http://kokocara-amami.com/sale/sale.php?eid=00161&display=01