- 賃貸物件
- Rent
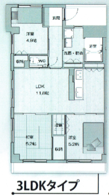
【 マンション 】【希少なペット可物件】4月入居可!窓を開ければ、名瀬の海と空。ペットと暮らす贅沢な3LDK
| 間取り | 面積 | 築年月 | 賃料 管理費等 | 敷金 礼金 |
|---|---|---|---|---|
| 3 LDK | 69.7㎡ 21坪 | 2014年04月 | 105,000
円
5000円 | 2ヵ月 1ヵ月 |
物件写真・間取り
物件概要
| 交通機関 |
|---|
| 建物構造 | 鉄骨造 |
|---|
| 所在階 / 階数 | 2 |
|---|
| 主要採光面 | 東側 |
|---|
| 駐車場 | 有 |
|---|
| 駐車場料金 | 1階駐車場:1台 10,000円 / 縦列2台 18,000円 |
|---|
| 住宅保険 | 要 |
|---|
| 保険料 | 要 |
|---|
| 契約期間 | 2年間 |
|---|
| 引渡 | 令和8年4月上旬 |
|---|
| 現況 | 賃貸中 |
|---|
| 備考 | *現在居住中、3月末退去予定 |
|---|
| 取引態様 | 媒介 |
|---|
| 情報登録日 | 2026年02月27日 |
|---|
| 情報更新日 | 2026年02月27日 |
|---|





















【希少なペット可物件】名瀬湾を一望する、設備充実の3LDKが募集開始!
奄美市名瀬長浜町に位置する「リベルテ長浜」201号室は、奄美市内でも数少ない「ペット相談可能」なファミリー物件です。
窓の外に広がる青い海を眺めながら、大切なペットと一緒に穏やかな時間を過ごしませんか?
🐾 ペット&家族に嬉しいポイント
【物件概要:リベルテ長浜 201号室】