- 売買物件
- Sale
奄美大島♪経年変化を楽しめる家… [龍郷町中勝の売家]
【 中古 一戸建て 】令和3年築の龍郷町中勝の売家♪
| 面積 | 築年月 | 価格 | 間取り |
|---|---|---|---|
土地/590㎡ 178坪 建物/96.64㎡ 29坪 | 2021年03月 | 3,700 万円 | 3 LDK |
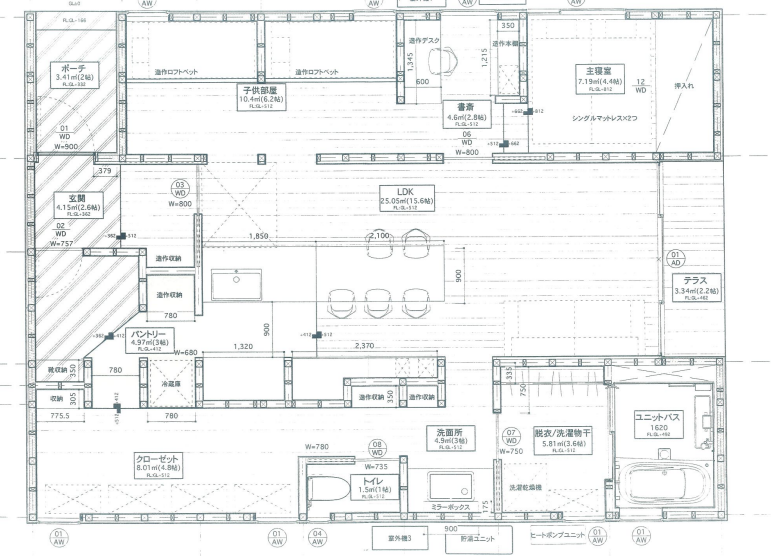
物件写真・間取り
物件概要
| 物件名 | 奄美大島♪経年変化を楽しめる家… [龍郷町中勝の売家] |
|---|
| 交通機関 |
|---|
| 価格 | 3,700 万円 |
|---|
| 間取り | 3 LDK |
|---|
| 間取り詳細 | 3LDK+書斎+ウオークインクローゼット |
|---|
| 土地面積 | 590㎡ |
|---|
| 私道負担面積 | 無し |
|---|
| 建物面積 | 96.64㎡ |
|---|
| 建物構造 | 木造 |
|---|
| 階 / 階数 | 2 |
|---|
| 築年月 | 2021年03月 |
|---|
| 都市計画 | 市街化区域 |
|---|
| 用途地域 | 無指定 |
|---|
| 建ぺい率 | 70% |
|---|
| 容積率 | 400% |
|---|
| 駐車場 | 有 |
|---|
| 接道 |
|
|---|
| 地目 | 宅地 |
|---|
| 現況 | 賃貸中 |
|---|
| 販売戸数 | 1 |
|---|
| 引渡し | 期日指定 相談 |
|---|
| 設備 | 公営水道・個別浄化槽(合併)・オール電化 |
|---|
| 取引態様 | 媒介 |
|---|
| 情報登録日 | 2025年07月09日 |
|---|
| 情報更新日 | 2025年07月11日 |
|---|

























奄美大島♪経年変化を楽しめる家…。
[龍郷町中勝の売家]
奄美大島 龍郷町の築3年のお家。
自分も、家族も、家も、変化していくから楽しい。
『時と共に変化する』ことは、愛着が持てる家の秘訣かもしれません。
杉板張りの外壁が太陽と雨で徐々に経年変化しシルバーグレーに。
何とも渋く味わいがあります。
室内は家事導線を重視しシンプルでコンパクト設計。
片流れの屋根と大きな窓で開放的なLDK。
キッチンとリビングを繋ぐダイニングテーブルは家族団欒スペース。
経年変化して 家が自分たちのものになっていく…。
そんな変化がとても面白く愛おしい…。
[物件概要] 物件住所:大島郡龍郷町中勝
土地 : 590㎡(約178坪)
建物 :1階 84:09㎡
2階 12:55㎡ (約29坪)
木造合金メッキ鋼板ぶき2階建
令和3年3月16日新築
*自然豊かで静かな住宅街です。
*名瀬市内に近く、ビックⅡにも近い♪
*駐車場は5~6台駐車可能
*オール電化
*家具家電(新築時購入)も付いてます
*大勝小学校、龍南中学校校区
気になる方は お問い合わせください。